Mansarda con balcone ed ascensore - AV25040 - Via Maso della Pieve - Pfarrhofstraße

  • 227500 €

Mansarda con balcone ed ascensore - AV25040 - Via Maso della Pieve - Pfarrhofstraße

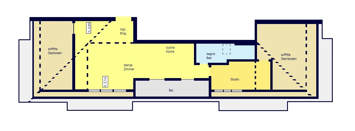
Bolzano Via Maso della Pieve - parte alta interna- AV25040 A.P.E:G Ampio appartamento bilocale di 62 mq al quinto piano con ascensore fino al quarto. Questo immobile è la soluzione ideale per chi cerca una abitazione mansardata di dimensioni generose all 'ultimo piano ed è disposto a fare una singola rampa di scale. Situato al quinto piano di un edificio residenziale , con vista aperta ad ovest e posizione interna, l'immobile si presenta con ampi spazi ben distribuiti e luminosi. L' ingresso porta ad una stanza ampia ed accogliente dove si trova la cucina e l' accesso al balcone, il bagno è finestrato con Velux elettrico. Inoltre vi è uno studio separato e due soffitte quali spazio di stivaggio data la mancanza di cantina. Le spese condominiali ammontano a circa 100 euro mensili comprensive ascensore e acqua calda, il riscaldamento ed il raffrescamento è autonomo con pompa di calore rendendo questa proprietà conveniente dal punto di vista economico. Inoltre, l’appartamento beneficia della vicinanza ai mezzi pubblici oltre che dei posti auto ad uso condominiale ( libero uso con sbarra di accesso) e la possibilità di locare un posto auto ad uso esclusivo. Foto non disponibili, sorry! Non perdere questa occasione unica! Contatta subito la nostra agenzia per fissare un appuntamento o ricevere ulteriori informazioni su questo incantevole appartamento bilocale in vendita a Bolzano. Vende abitaREhaus Tel.+Whatsapp 0471383425

Ulteriori Dettagli

  • APPARTAMENTO
  • n.d.
  • 62 mq
  • Camere 1