Quadrilocale nuovo con giardino e terrazza. AV25055_B3 - Via Catinaccio

  • 700000 €

Quadrilocale nuovo con giardino e terrazza. AV25055_B3 - Via Catinaccio

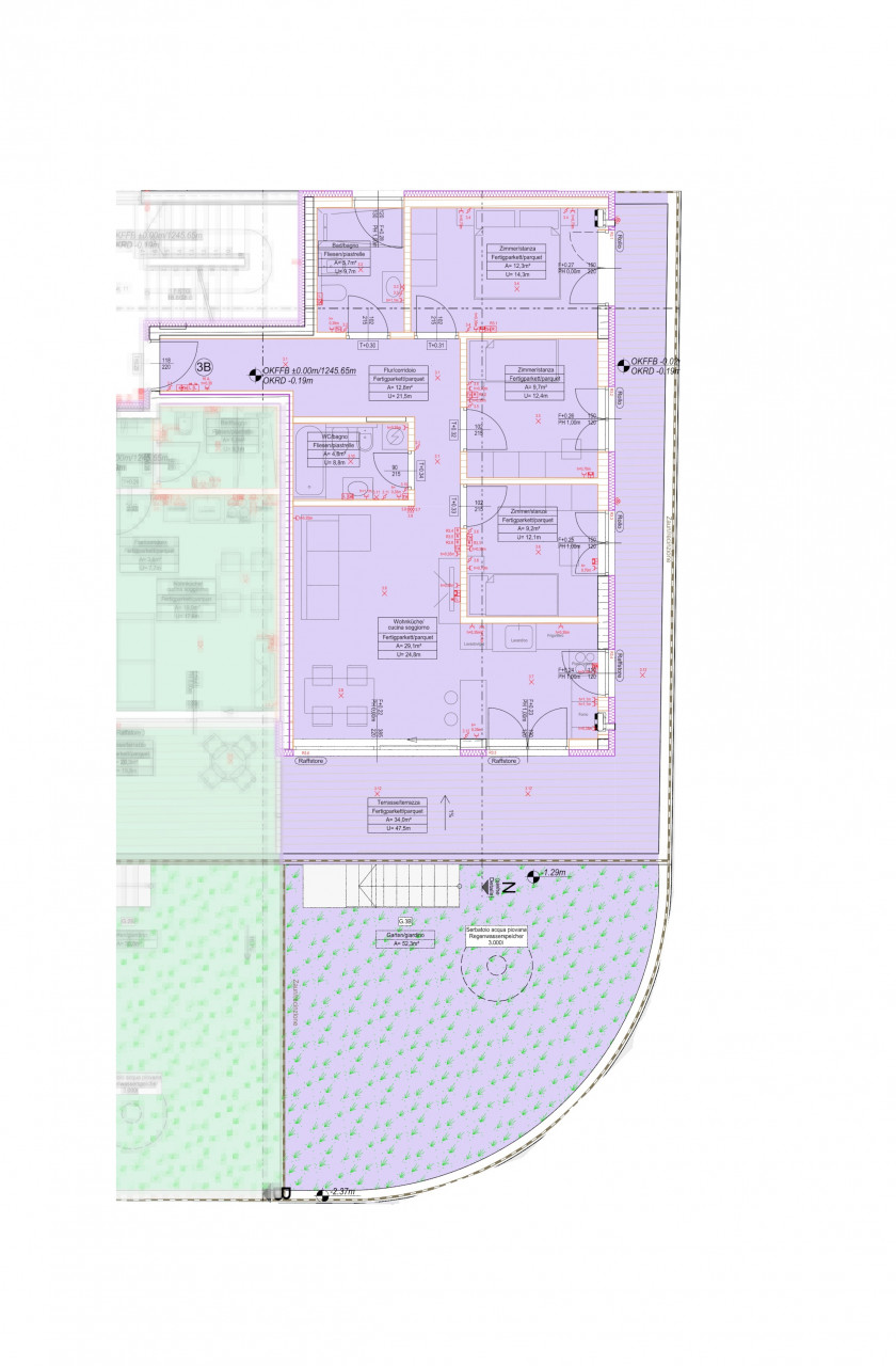
Rif. AV25055_B3 Soprabolzano A.P.E: Casa Clima A Nature In una palazzina moderna di nuova costruzione: - Soggiorno con zona pranzo - Camere da letto: 3 - Bagni: 2 - Giardino: 72 mq - Terrazza: 34 mq --- - Superficie di vendita: 107 mq Incluso: - Cantina Eventuale - Garage - venduto a parte da Euro 35000- Renon - Soprabolzano AV25055_B3 L'edificio: Questo immobile è sito in un edificio di nuova costruzione, con inizio lavori anno 2025 con fine stimata per il 2026. L'edificio ha tutti i confort moderni e necessari per vivere con qualità come ad esempio la connessione al teleriscaldamento con gestione autonoma anche da remoto dell'accensione e spegnimento e una certificazione Casaclima A Nature. L’edificio proposto si trova nel centro di Soprabolzano in via Catinaccio collegato con una strada di nuova realizzazione. L'appartamento si trova al piano terra - con vista aperta - di questo nuovo complesso. Per i vostri ospiti, saranno disponibili posti auto esterni di uso condiviso. L'abitazione è sottoposta ai vincoli provinciali per residenti e NON può essere utilizzato anche come immobile da investimento/ferie. Siete interessati a questa offerta? Chiamateci - o scriveteci - e prendete un appuntamento in ufficio. Vendita soggetta ad IVA. Contattaci adesso!

Ulteriori Dettagli

  • APPARTAMENTO
  • n.d.
  • 107 mq
  • Camere 1
  • Posto auto scoperto 1